H QUEEN’S
H Queen’s Overview
The building is situated at the intersection of Pottinger Street and the bustling thoroughfare of Queen's Road Central in Hong Kong. It is designed for how people experience art, culture and lifestyle in Hong Kong. It houses extraordinary spaces, especially suitable for art galleries.
-
Address
80 Queen’s Road Central
Developer
Henderson
Ownership
Single
Completion Date
2017
Office Floors
19 (2 - 26/F)
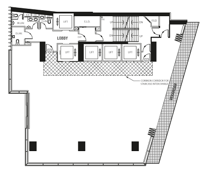
Typical Floor Plate
Approx. 4,843 sq. ft. gross
Total Floor Area
92,000 sq. ft. gross
Management Fees
HK$6.8 PSF
View
City View
Car Park
Nil
-
Floor System
Raised floor
Ceiling Height
Approx. 2.74m
A/C System
VAV Central A/C
-
-
Existing & Previous
Arbor
Audemars Piquet
David Zwirner
Ding’s Club
Écriture
Estiatorio Keia
Galerie Ora-Ora
Hauser & Wirth
Ichu
La Petite Maison
Piqniq
Pace Gallery
Tang Contemporary Art
SA+ Seoul Auction
Whitestone Gallery
-
< HK$100 > HK$50 (similar rental level)
Standard Chartered Bank Building
Shanghai Commercial Bank Tower
≥ HK$100
Agricultural Bank of China Tower
Champion Tower (3 Garden Road)
< HK$50
Looking for other conventional offices and serviced offices for rent instead? Simply fill in the office search form.
Explore our exclusive offices for rent at H Queen’s now.
Fill in the form and our real estate expert will contact you shortly, or simply email us.

